Search Properties

Main Road, Gidea Park

Essex, Romford

£875,000

4 x 2 x 2 x
Department:
Sales
Reference:
1000_RS0648
Postcode:
RM2 5JB
Type:
Detached House
Availability:
For Sale
Receptions:
2
Tenure:
Freehold

Summary

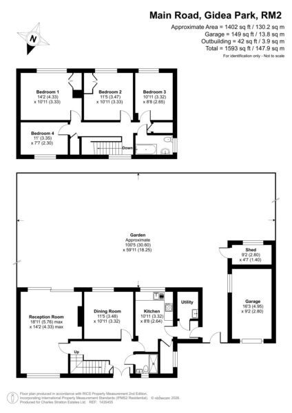
*** NO ONWARD CHAIN *** Four Bedrooms | Two Reception Rooms | Kitchen | Separate Utility | Ground Floor Shower Room | First Floor Bathroom | Own Drive to Garage | Rear Gardn Approx. 100' X 60' |

Details

Occupying a generous plot with approximately 63 feet of road frontage and offering potential to extend and enhance the current accommodation (subject to planning approval) is this Four-Bedroom Detached Home situated in a convenient position for local schools, parks, and open spaces, Romford Town Centre and Gidea Park's Crossrail Elizabeth Line Railway Station.

The property is set back from Main Road and is approached by its own driveway which provides off-street parking and leads to the Garage at the side of the property.

The front door opens to the Entrance Hall with doors opening to a dual aspect Lounge, Dining Room, Kitchen with separate Utility, and Ground Floor Shower Room W.C.

To the first floor there are Four Bedrooms and a Family Bathroom W.C. and further benefits from a rear garden measuring approximately 100 x 60'.


Tenure: Freehold
Parking options: Driveway, Garage, Off Street
Garden details: Rear Garden

Floor Plans

EPC

Request Further Details

Or arrange a viewing