Search Properties

Parkway, Gidea Park

Essex, Romford

£1,250,000 Offers Over

4 x 3 x 2 x
Department:
Sales
Reference:
1000_RS0512
Postcode:
RM2 5NT
Type:
Detached House
Availability:
Sold STC
Receptions:
2

Summary

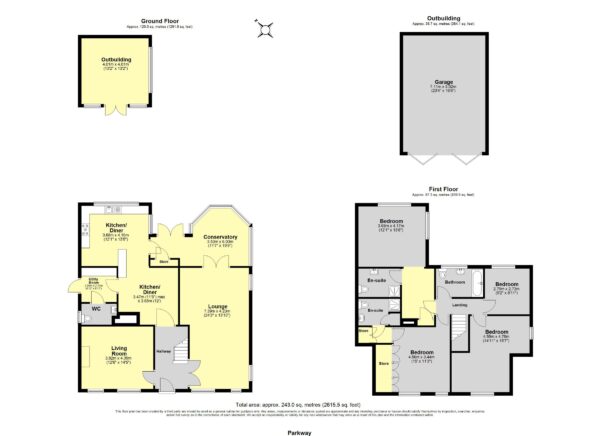
Detached House on The Gidea Park Exhibition Estate | Four Bedrooms | Two En-Suites | Family Bathroom W.C. | Lounge | Sitting Room | Kitchen/Diner | Separate Utility | G.F.W.C. | Conservatory | Detached Double Garage | Summer House | Rear Garden Approximately 85' X 44' |

Details

Exceptional example of a Gidea Park Exhibition Home enjoying views of Raphaels Park which has been beautifully maintained by its existing owners.

The property is approached through a well-maintained garden which is mainly lawned with a privet hedge and Indian Sandstone borders and pathway leading to the front door.

Accommodation commences with an Entrance Hallway with doors opening to the Sitting Room, Lounge which opens to the Conservatory, Kitchen/Diner with Sperate Utility, and Cloakroom W.C. To the first floor there are Four Bedrooms, two with En-Suite Shower Rooms, and Family Bathroom W.C.

The rear gardens have been meticulously maintained and are ideal for a family or those who like to entertain. Commencing with a large Sun Terrace, a pathway leads mainly lawned gardens to the rear, where there is a large Summer House with power and lighting, and a further paved seating area. The rear of the property enjoys an unoverlooked position backing onto the gardens of Meadway.

Situated just across the road is a large detached garage measuring 23'4" X 16'6" with further parking for two to three vehicles on the approaching driveway included in the sale of this property.



Parking options: Driveway, Garage

Floor Plans

EPC

Request Further Details

Or arrange a viewing