Search Properties

Harwood Avenue, Hornchurch

Essex

£550,000 Offers Over

3 x 2 x x
Department:
Sales
Reference:
1000_RS0262
Postcode:
RM11 2NU
Type:
End of Terrace House
Availability:
Sold STC
Tenure:
Freehold
Council Tax Band:
C

Summary

Three-Double Bedroom Family Home | En-Suite to Master Bedroom | First Floor Bathroom | Lounge/Diner | Kitchen Breakfast Room | Outbuilding Used as a Bar/Games Room with Shower Room W.C. | Recently Re-Fitted Kithen | Large Garden |

Details

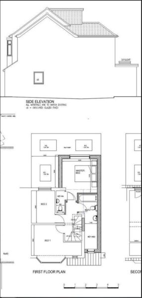
Three double-bedroom family home situated close to the excellent Ardleigh Green Junior School, local shops and amenities, David Lloyd Gym, and being situated approximately 0.8miles from Gidea Park Railway Station with its Crossrail Elizabeth Line rail links.

Accommodation comprises Three Double-Bedrooms over the first and second floors, the Master benefiting from En-Suite Shower Room and the Family Bathroom situated on the first floor. To the ground floor there is a Lounge/Diner which opens to the Kitchen Breakfast Room overlooking the rear gardens. There will be a new Wren Kitchen being fitted in October 2023 which will include a range of new appliances. CGI and kitchen plan can be found in the photographs.

There is a large South-West facing rear garden with a very impressive Bar/Games Room situated at the bottom which is an ideal place for entertaining away from the main residence.

Planning permission has previously been passed for a two-storey side extension, part single, part two storey rear extension and single storey front porch extension. Ref:P1187.22





Council Tax Band: C
Tenure: Freehold
Parking options: Off Street
Garden details: Private Garden

Floor Plans

EPC

Request Further Details

Or arrange a viewing