Search Properties

Blind Lane, Billericay

Essex

£1,000,000 Guide Price

Department:
Sales
Reference:
1000_RS0225
Postcode:
CM12 9SN
Type:
Land
Availability:
Sold STC
Tenure:
Freehold

Summary

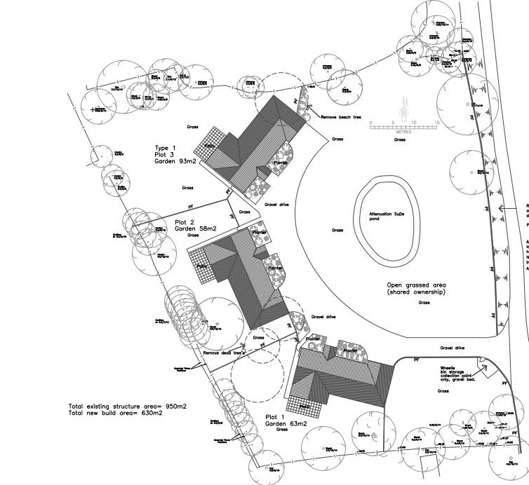
*** GUIDE PRICE £1,000,000 to £1,250,000 *** Site Available with Planning Consent For Three Detached Bungalow Measuring 2260 Square Feet Each | Application Application No: 25/00026/FUL | Site is of approximately 1.5 acres |


Details

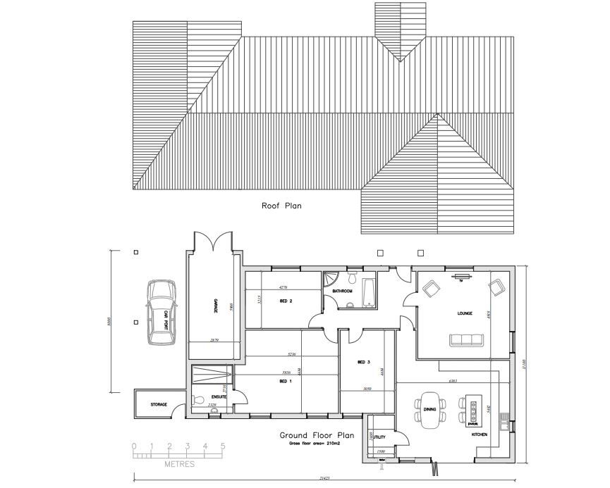
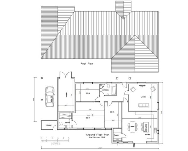
Planning consent has been granted for three detached bungalows measuring approximately 2260 square feet each in a rural location surrounded by fields and woodlands within reach of both Billericay and Brentwood Town Centres. Application Application No: 25/00026/FUL.

New Build Accommodation 3 Beds | 2 Bathrooms | Lounge | Kitchen/Diner | Utility | Garage | Carport |


For further details please call or email Charles Stratton Estate Agents.

Tenure: Freehold

Request Further Details

Or arrange a viewing